产品概述
过滤器是除去液体中少量固体颗粒的小型设备,可保护压缩机、泵、仪表和其它设备的正常工作,当流体进入置有一定规格滤网的滤筒后,其杂质被阻挡,而清洁的滤液则由过滤器出口排出,当需要清洗时,只要将可拆卸的滤筒取出,处理后重新装入即可,因此,使用维护方便。本公司生产的过滤器具有结构紧凑、过滤能力大、压损小、适用范围广、维护方便、价格低廉等优点,其主要适用的物料有:化工、石油化工生产中弱腐蚀性物料,如:水、油品、氨、烃类等。化工生产中的腐蚀性物料,如:烧碱、纯碱、浓稀硫酸、碳酸、醛酸等。制冷中的低温物料,如:液甲烷、液氨、液氧和各种冷剂。食品、制药生产中有卫生要求的物料,如:啤酒、饮料、乳制品、糖浆等。
型号标注
本公司生产的管道过滤器,主要有:1、Y型过滤器 2、T型过滤器 3、篮式过滤器 4、临时过滤器 5、气体过滤器。 其型号标注如下:
2、T型过滤器

(1)T型对焊连接直通式过滤器(PFT-W型)(DN50~400,PN≤5.OMPa)
(2)T型法兰连接直通式过滤器(PFT-F型)(DN50~400,PN≤5.OMPa)

PFTI—W、PFTI—F型
|
DN
|
TI-W型
|
TI-F型
|
N
|
|
L
|
DO
|
H
|
L
|
H
|
|
系列A
|
系列B
|
|
50
|
128
|
60.3
|
57
|
175
|
230
|
170
|
Rc3/8
|
|
65
|
152
|
76.1
|
76
|
195
|
260
|
170
|
|
80
|
172
|
88.9
|
89
|
210
|
290
|
180
|
|
100
|
210
|
114.3
|
108
|
230
|
350
|
200
|
|
125
|
248
|
139.7
|
133
|
310
|
390
|
230
|
|
150
|
286
|
168.3
|
159
|
335
|
435
|
250
|
Rc3/4
|
|
200
|
356
|
219.1
|
219
|
400
|
540
|
310
|
|
250
|
432
|
273
|
273
|
450
|
640
|
370
|
M20×1.5
|
|
300
|
508
|
323.9
|
325
|
535
|
745
|
425
|
|
350
|
558
|
355.6
|
377
|
580
|
800
|
460
|
|
400
|
610
|
406.4
|
426
|
640
|
900
|
520
|
注:用户在订货时请注明三通壁厚系列
(3)T型对焊连接折叠直通式过滤器(PFTM I—W型)(DN200—500,PN≤5.0MPa) PFTMI-W型
|
DN
|
DO
|
L
|
H
|
N
|
|
系列A
|
系列B
|
|
200
|
219.1
|
219
|
356
|
380
|
M20×1.5
|
|
250
|
273
|
273
|
432
|
520
|
|
300
|
323.9
|
325
|
508
|
580
|
|
350
|
355.6
|
377
|
558
|
700
|
|
400
|
406.4
|
426
|
610
|
760
|
|
500
|
508
|
529
|
762
|
920
|
|
 |
(4)T型对焊连接正折流式过滤器(PFT II—W型)(DN50~400,PN≤5.OMPa)
(5)T型对焊连接反折流式过滤器(PFT III—W型)(DN50~400,PN≤5.OMPa)

PFT II—W,PFT III—W型
|
DN
|
DO
|
L
|
H
|
L1
|
N
|
|
系列A
|
系列B
|
|
50
|
60.3
|
57
|
300
|
64
|
165
|
Rc3/8
|
|
65
|
76.1
|
76
|
340
|
76
|
185
|
|
80
|
88.9
|
89
|
370
|
86
|
195
|
|
100
|
114.3
|
108
|
425
|
105
|
220
|
|
125
|
139.7
|
133
|
465
|
124
|
240
|
|
150
|
168.3
|
159
|
520
|
143
|
270
|
Rc3/4
|
|
200
|
219.1
|
219
|
630
|
178
|
320
|
|
250
|
273
|
273
|
740
|
216
|
370
|
M20×1.5
|
|
300
|
323.9
|
325
|
845
|
254
|
420
|
|
350
|
355.6
|
377
|
910
|
279
|
450
|
|
400
|
406.4
|
426
|
1040
|
305
|
520
|
(6)T型法兰连接正折流式过滤器(PFT II—F型)(DN50~400,PN≤5.OMPa)
(7)T型法兰连接反折流式过滤器(PFT III—F型)(DN50~400,PN≤5.OMPa)
PFI II—F型,PFT III—F型
|
DN
|
L
|
H
|
L1
|
N
|
|
50
|
300
|
165
|
165
|
Rc3/8
|
|
65
|
340
|
185
|
185
|
|
80
|
370
|
195
|
195
|
|
100
|
425
|
195
|
220
|
|
125
|
465
|
195
|
240
|
|
150
|
520
|
215
|
270
|
|
200
|
630
|
270
|
320
|
Rc3/4
|
|
250
|
740
|
320
|
370
|
|
300
|
845
|
370
|
420
|
M20×1.5
|
|
350
|
910
|
400
|
450
|
|
400
|
1040
|
450
|
520
|
|
 |
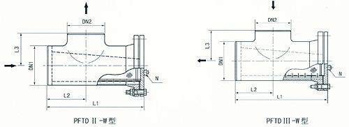
(8)T型异径对焊连接正折流式过滤器(PFTDII—F型)(DN50X40~300×X250,PN≤10.OMPa)
(9)T型异径对焊连接反折流式过滤器(PFTDIII—F型)(DN50X40~300×250,PN≤10.OMPa)

PFTD II—W,PFTD III—W型
|
DN1×DN2
|
DN1×DN2
|
L2
|
L3
|
L1
|
N
|
|
系列A
|
系列B
|
PN2.0
|
PN2.5
|
PN4.0
|
PN5.0
|
PN10.0
|
|
50×40
|
60.3×48.3
|
57×45
|
64
|
60
|
213
|
202
|
202
|
222
|
228
|
Rc3/8
|
|
80×50
|
88.9×60.3
|
89×57
|
86
|
76
|
268
|
216
|
263
|
282
|
289
|
|
80×65
|
88.9×76.1
|
89×76
|
86
|
83
|
268
|
261
|
263
|
282
|
289
|
|
100×65
|
114.3×76.1
|
108×76
|
105
|
95
|
312
|
304
|
314
|
330
|
352
|
|
100×80
|
114.3×88.9
|
108×89
|
105
|
98
|
312
|
304
|
314
|
330
|
352
|
|
150×100
|
168.3×114.3
|
159×108
|
143
|
130
|
402
|
392
|
394
|
423
|
453
|
Rc3/4
|
|
200×100
|
219.1×114.3
|
219×108
|
178
|
156
|
489
|
469
|
487
|
510
|
546
|
|
250×150
|
273×168.3
|
273×159
|
216
|
194
|
566
|
550
|
579
|
599
|
649
|
|
250×200
|
273×219.1
|
273×219
|
216
|
203
|
566
|
550
|
579
|
599
|
649
|
M20×1.5
|
|
300×250
|
323.9×273
|
325×273
|
254
|
241
|
656
|
632
|
670
|
691
|
732
|
|